October, 2023
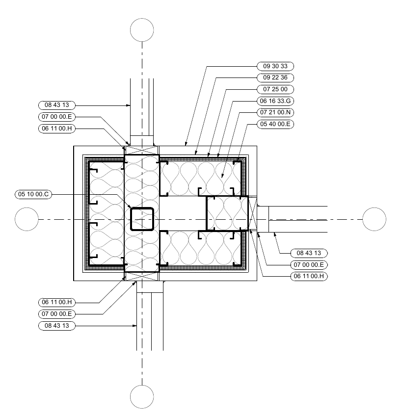
Archicad does not have a feature to insert typical architectural "keynotes," at least not in a manner that is consistent with the parametric and connected way that BIM models should work, so I scripted a GDL keynote myself for Höhe Design Group. The keynote utilizes Archicad's Changes/Revision system and is parametric with editable text, arrows, size and outline shape, and is also connected to another GDL object which automatically populates the keynotes present in each sheet.