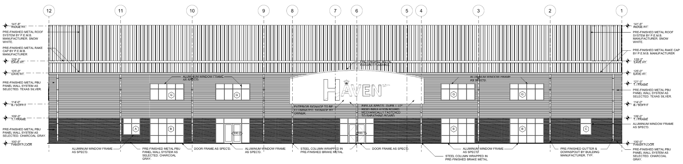
April, 2024A new FBO facility designed by Höhe Design Group for Haven Aero in Amarillo, Texas. I helped the team with almost every aspect of the construction document packet, including floor plans, elevations, sections and details.